Realizzazioni Luoni Costruzioni S.R.L.
 
 





Gallarate via Milano 32

Rendering
 
 


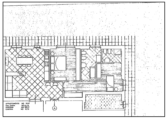
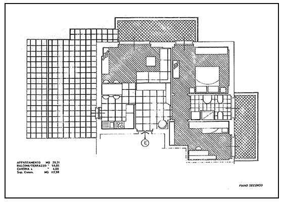
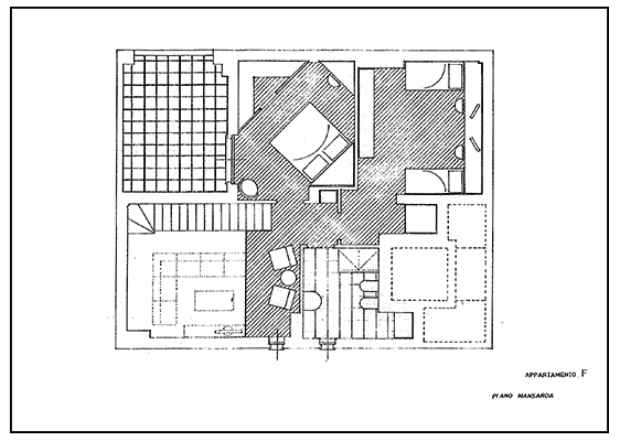
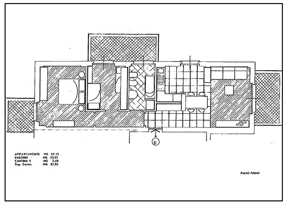
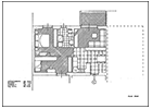
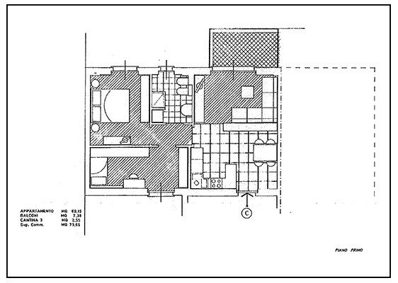
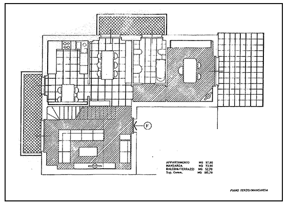
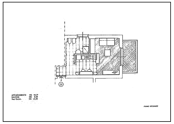
Planimetrie
 
 

Ritorna all'indice







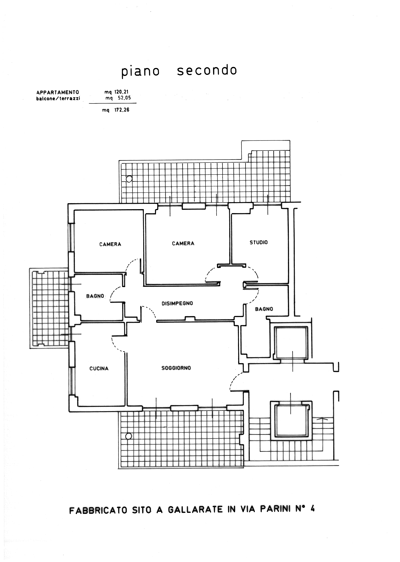
Gallarate via Parini

Planimetrie
 


Foto
 
 
 
 

Ritorna all'indice